Эффективность:
КМУ SQ8SK3Q обеспечивает эффективную погрузку и транспортировку в самых разнообразных сферах деятельности. Эта маневренная спецтехника позволяет экономить горюче-смазочные материалы, оптимизировать автопарк и снизить трудозатраты. Благодаря компактным размерам, она может работать в ограниченных пространствах, обеспечивая точность и оперативность в выполнении задач.
Грузоподъемность:
SQ8SK3Q обладает оптимальной грузоподъемностью для погрузки различных видов грузов. Мощный гидроцилиндр обеспечивает выдвижение и втягивание стрелы, а поворотная платформа обеспечивает плавное вращение на 360 градусов. Это позволяет эффективно погружать грузы практически с любой точки, сэкономив время и усилия.
Комфорт и безопасность:
Опоры SQ8SK3Q позволяют регулировать угол наклона грузовика, обеспечивая удобство при погрузке сложных грузов. Система управления с земли, а также возможность дистанционного управления и использования радио, расширяют возможности работы и обеспечивают безопасность оператора.
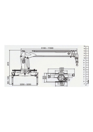
Габариты:
КМУ XCMG SQ8SK3Q сочетает в себе надежность и доступность. Его конструкция позволяет устанавливать его на грузовые автомобили различной грузоподъемности, что делает его универсальным решением для различных задач.
Купить кран-манипулятор SQ8SK3Q MGCM – это вложение в надежное и эффективное оборудование, способное справляться с разнообразными задачами погрузки и транспортировки. Свяжитесь с нашими представителями, чтобы узнать более подробную информацию о технических характеристиках, условиях приобретения и других деталях.
Как купить запасные части и комплектующие для вашей спецтехники в ТОО «ТехАвтоКар»
Когда ваш автомобиль требует замены запасных частей или комплектующих, важно знать, как правильно осуществить этот процесс. В компании "ТехАвтоКар" мы стремимся обеспечить наших клиентов высококачественными запасными частями и комплектующими, и сделать процесс покупки максимально удобным и простым. В этой статье мы подробно рассмотрим шаги, которые помогут вам купить необходимые детали для вашего автомобиля.
1. Определите, какие детали вам нужны
Перед тем как приступить к покупке, определите, какие именно запасные части или комплектующие вам необходимы. Это может потребовать диагностики вашего автомобиля или консультации с нашими специалистами. Уточните марку, модель и год выпуска вашего автомобиля, а также номера деталей, если они известны. Эта информация поможет вам выбрать правильные компоненты. Так же по необходимости вы можете запросить каталог, или скачать нужный с данного сайта
2. Обратитесь в наш официальный магазин
Мы рекомендуем обращаться только в официальные точки продаж "ТехАвтоКар" или на наш сайт, чтобы убедиться, что вы получите оригинальные и качественные запасные части. В наших магазинах вы сможете получить профессиональную помощь от наших сотрудников и консультацию по подбору деталей.
3. Консультация с нашими специалистами
Наши специалисты всегда готовы помочь вам выбрать правильные запасные части и комплектующие. Обсудите с ними детали, уточните вопросы и получите рекомендации по замене и установке.
4. Подготовьтесь к покупке
Проверьте наличие выбранных запасных частей на складе или уточните сроки доставки. Также узнайте о ценах и наличии акций или скидок. Подготовьтесь к оплате и оформлению необходимых документов.
5. Заключите сделку
После тщательной подготовки заключите сделку и оплатите выбранные детали. Удостоверьтесь, что вы получили чек или квитанцию, подтверждающую вашу покупку.
6. Установка и обслуживание
Если необходима установка после приобретения запасных частей обратитесь к нашим мастерам для установки и обслуживания. Наши профессионалы гарантируют качественную работу, что обеспечит надежную и безопасную эксплуатацию вашего автомобиля или спецтехники.
В компании "ТехАвтоКар" мы гордимся предоставлением нашим клиентам высококачественных запасных частей и комплектующих, а также профессиональным обслуживанием. Мы всегда готовы помочь вам поддерживать ваш автомобиль в отличном состоянии. Надеемся, что эта статья помогла вам разобраться, как правильно купить необходимые детали. Не стесняйтесь обращаться к нам с любыми вопросами и потребностями по вашему автомобилю.
Мы всегда здесь, чтобы помочь!
Условия оплаты для запасных частей и комплектующих: Как сделать покупки удобными и безопасными
В нашем интернет-магазине запасных частей мы стремимся сделать этот процесс максимально простым и безопасным для наших клиентов. В этой статье мы подробно рассмотрим условия оплаты, чтобы вы могли совершать покупки с уверенностью и удовлетворением.
- Безналичный расчёт
- Наличный расчет
- Оплата при получении
Для вашего удобства мы также предоставляем возможность оплаты заказа при его получении. Вы можете расплатиться наличными или банковской картой непосредственно курьеру или в пункте самовывоза. Однако имейте в виду, что в некоторых случаях может потребоваться предоплата или дополнительные комиссии. - Кредит
- Рассрочка
Безопасность оплаты
Безопасность вашей информации - наш приоритет. Мы используем передовые технологии шифрования данных, чтобы обеспечить надежную защиту ваших финансовых данных и личной информации. Вы можете совершать покупки у нас с уверенностью в безопасности.
Подробные условия оплаты
На каждой странице товара и при оформлении заказа вы найдете подробные сведения о доступных способах оплаты и условиях. Мы также предоставим возможность отслеживать статус вашего заказа в личном кабинете на сайте. Мы ценим ваш выбор нашего интернет-магазина для покупки запасных частей. Если у вас возникли вопросы относительно условий оплаты или других аспектов покупки, не стесняйтесь обратиться к нашей службе поддержки. Мы всегда готовы помочь и сделать ваш опыт покупок у нас приятным и удовлетворительным.
Спасибо, что выбрали нас для ваших покупок запасных частей!
Условия доставки запасных частей и комплектующих по всему Казахстану
Покупка запасных частей и комплектующих для вашего автомобиля, спецтехники или промышленного оборудования может быть существенной частью обслуживания вашей техники. Важно, чтобы этот процесс был максимально удобным и эффективным. В компании "ТехАвтоКар" мы стремимся обеспечить наших клиентов качественными запасными частями и удобной доставкой по всей территории Казахстана. В этой статье мы рассмотрим условия доставки, чтобы вы знали, как получить необходимые компоненты без лишних хлопот.
1. География доставки
Мы осуществляем доставку запасных частей и комплектующих по всей Республике Казахстан. Независимо от вашего местоположения - в большом городе или отдаленной деревне, мы доставим заказ к вам.
2. Способы доставки
Для вашего удобства мы предоставляем несколько способов доставки:
- Доставка нашими службами
Имея собственные автомобили, мы осуществляем доставку «до двери» в зависимости от региона - Курьерская доставка
Мы работаем с надежными курьерскими службами, которые быстро и надежно доставят ваш заказ прямо к вашему адресу. - Пункты самовывоза
Если вам удобнее самостоятельно забрать заказ, мы предоставляем возможность получения товара в наших пунктах самовывоза, распределенных по разным регионам Казахстана. - Почтовые службы
Для клиентов, находящихся в отдаленных районах, мы сотрудничаем с почтовыми службами, чтобы ваш заказ доставился точно в срок.
3. Сроки доставки
Сроки доставки могут различаться в зависимости от вашего местоположения и выбранного способа доставки. Мы всегда стремимся доставить ваш заказ как можно быстрее и информируем вас о сроках при оформлении заказа.
4. Оплата доставки
Стоимость доставки может зависеть от выбранного способа и географии. Подробную информацию о стоимости доставки уточняйте у специалистов нашей компании.
5. Отслеживание заказа
Мы предоставляем возможность отслеживать статус вашего заказа в вашем личном кабинете на нашем сайте. Это позволяет вам быть в курсе, когда можно ожидать доставку.
6. Возврат и обмен
Мы всегда готовы помочь вам с вопросами возврата или обмена товаров, если они не соответствуют вашим ожиданиям или имеют дефекты.
Мы гордимся тем, что предоставляем высококачественные запасные части и комплектующие в сочетании с удобной доставкой по всей территории Казахстана. Наша цель - облегчить процесс обслуживания вашей техники и сделать его максимально комфортным для вас. Не стесняйтесь обращаться к нашей службе поддержки, если у вас есть какие-либо вопросы или требуется дополнительная информация о наших условиях доставки.
Спасибо, что выбрали нас для ваших покупок запасных частей и комплектующих!
